Modern wooden chalet with large windows and wraparound deck at sunset

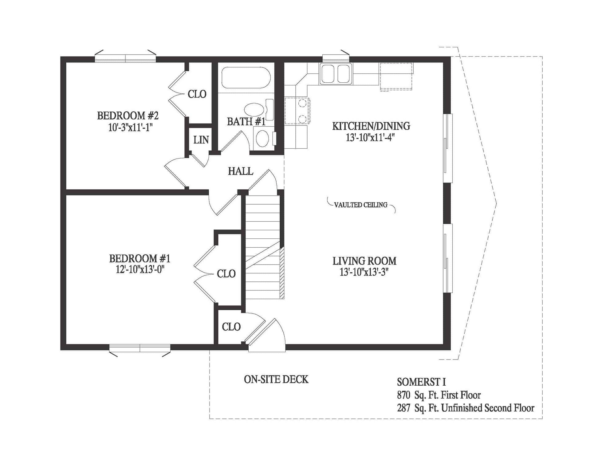
Somerset I

Black house icon on a white background

Vacation

Black bed icon with a white pillow and headboard on a white background

2

Black bathtub with showerhead spraying water on a white background

1

Black focus/scan icon with a plus sign in the center on a white background

1157

Click the images below to view larger