A green house with a brown roof and a porch

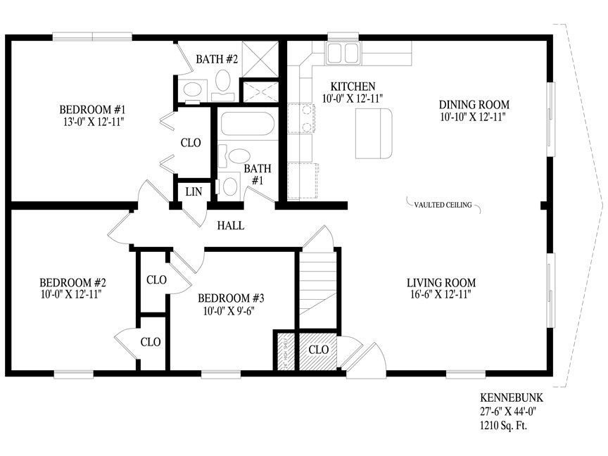
Kennebunk

A black silhouette of a house with a chimney on a white background.

Vacation

A black and white silhouette of a bed on a white background.

3

A black and white silhouette of a bathtub with a shower head.

2

A black and white drawing of a plus sign on a white background.

1210

Click the images below to view larger