Two-story gray house with white trim, front porch, and landscaped yard under a blue sky

Willow

Black house icon on a white background

Two Story

Black bed icon with a white pillow and headboard on a white background

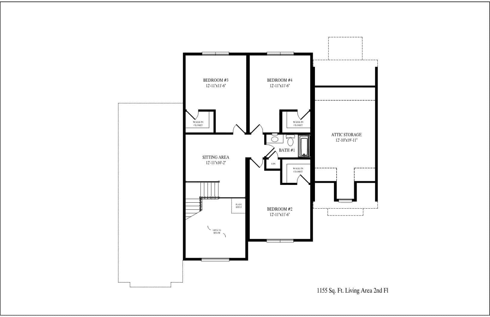
4

Black bathtub with showerhead spraying water on a white background

3

Black focus/scan icon with a plus sign in the center on a white background

3346

Click the images below to view larger