An artist 's impression of a house on the beach.

The Normandy

A black silhouette of a house with a chimney on a white background.

Seaside Selections

A black and white silhouette of a bed on a white background.

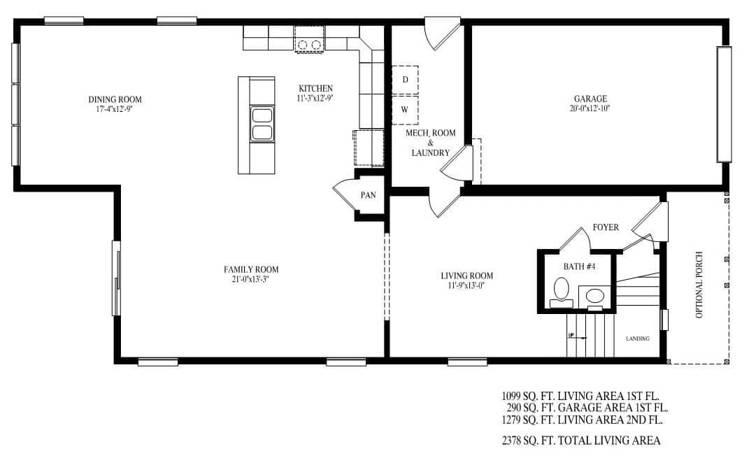
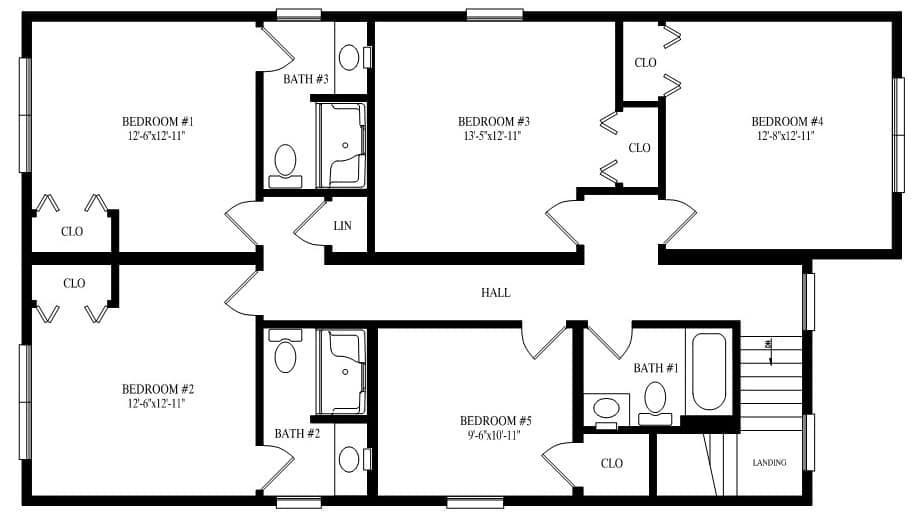
5

A black and white silhouette of a bathtub with a shower head.

4

A black and white drawing of a plus sign on a white background.

2378

Click the images below to view larger