Two-story beige house with white trim, front porch, and green lawn in a suburban setting

The Beach Walk

Black house icon on a white background

Seaside Selections

Black bed icon with pillow and headboard, side view

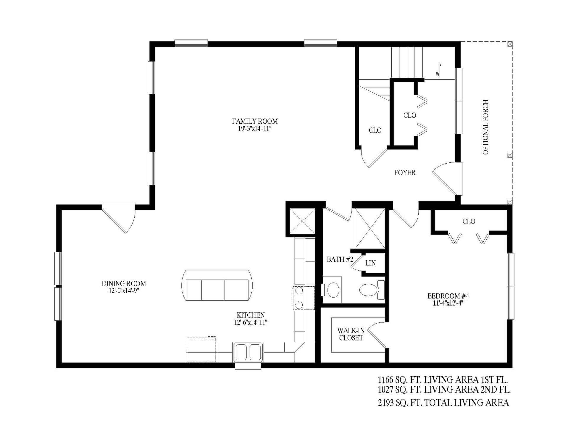
4

Black bathtub with a showerhead spraying water onto it, bathroom icon

2

Black scan/crop icon with four corner brackets and a plus sign in the center on a white background

2193

Click the images below to view larger