Suburban two-story house with brick and siding, dark roof, black shutters, and a detached garage under a blue sky

Springfield

Black house icon on a white background

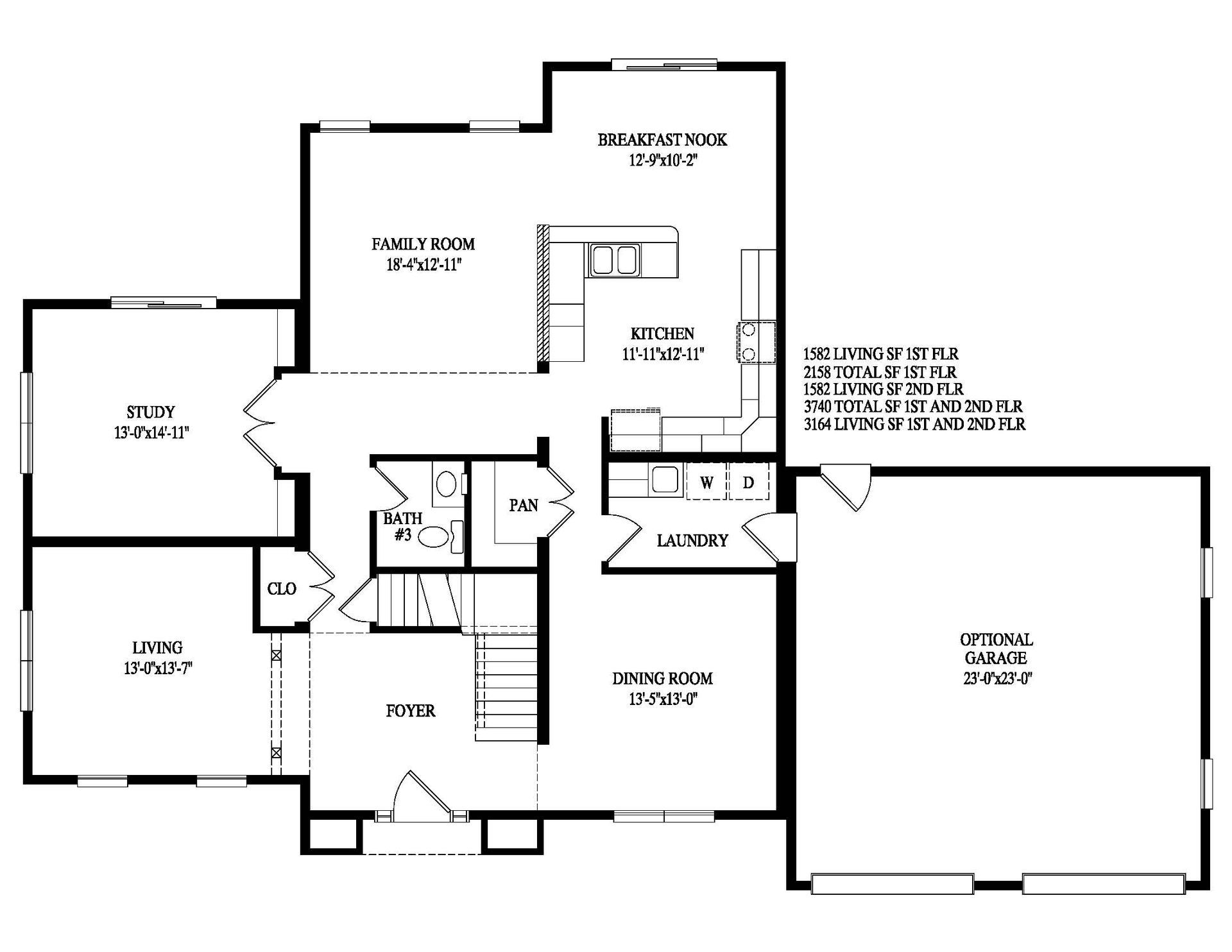
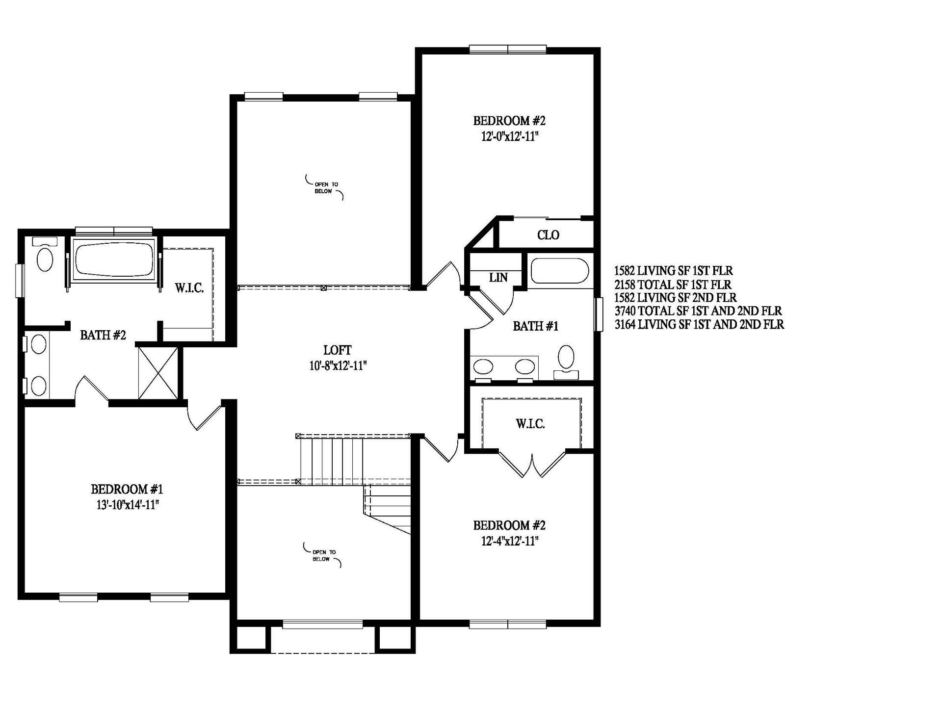
Two Story

Black bed icon with a white pillow and headboard on a white background

3

Black bathtub with showerhead spraying water on a white background

3

Black focus/scan icon with a plus sign in the center on a white background

3164

Click the images below to view larger