Two-story beige house with white trim, balcony, and bay windows against a blue sky

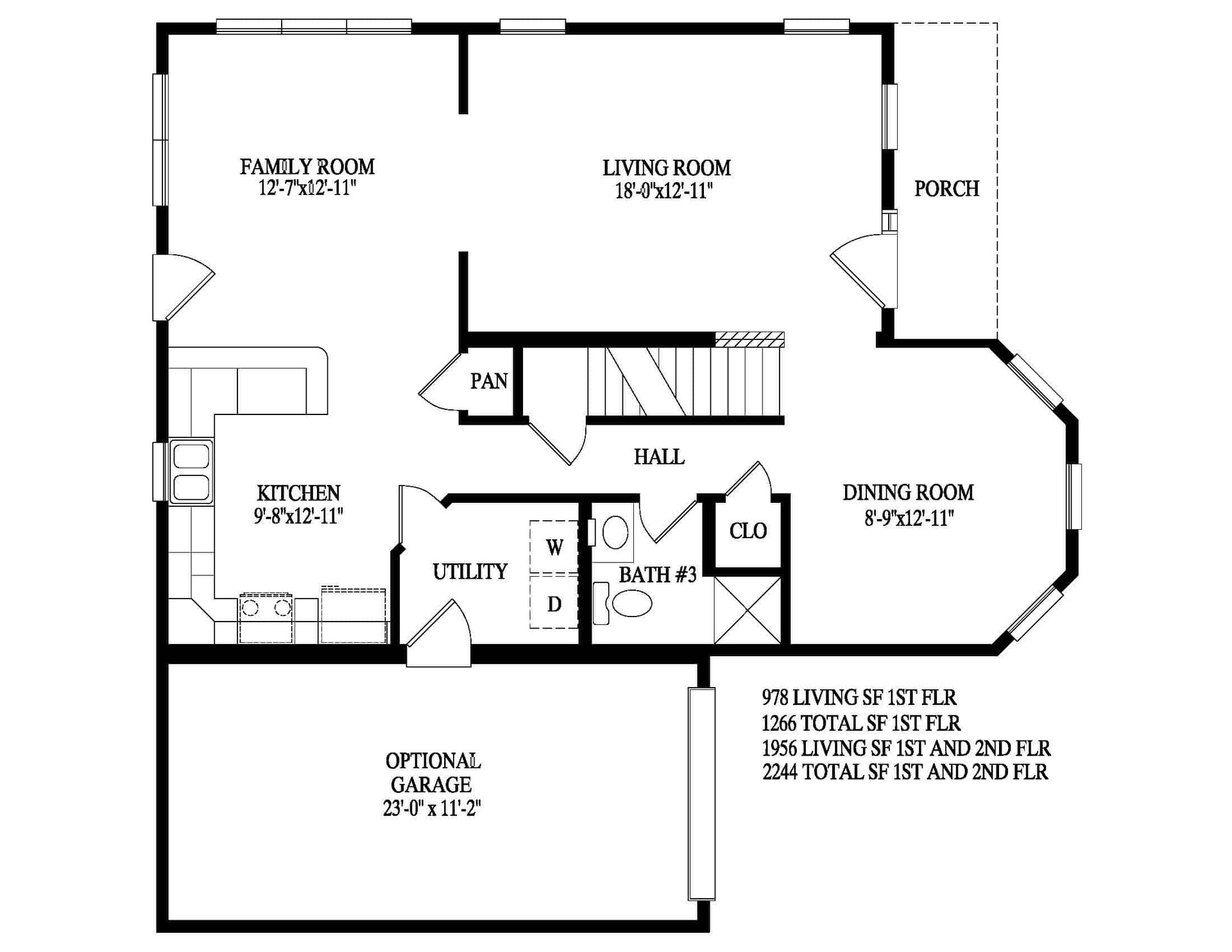
McKenna

Black house icon on a white background

Two Story

Black bed icon with headboard and pillow

3

Black bathtub with shower head and water spray icon

3

Black focus/scan icon with four corner brackets and a plus sign in the center on a white background

1956

Click the images below to view larger