A house with a lot of windows and a porch

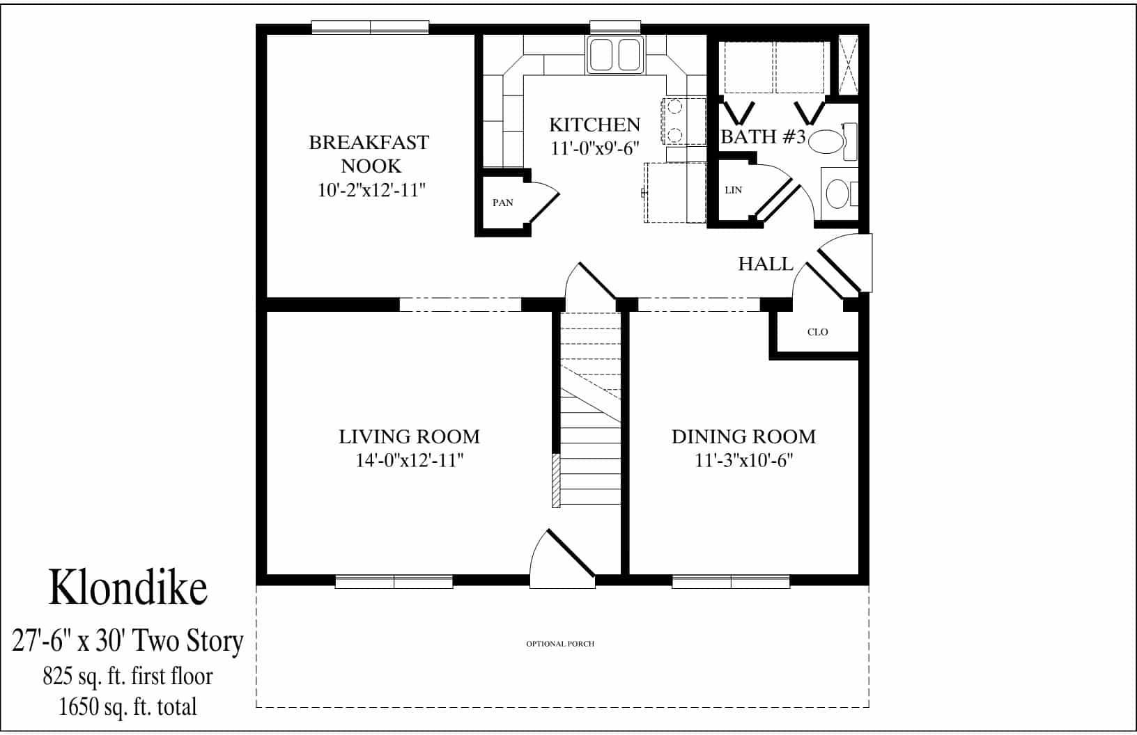
Klondike

A black silhouette of a house with a chimney on a white background.

Two Story

A black and white silhouette of a bed on a white background.

3

A black and white silhouette of a bathtub with a shower head.

3

A black and white drawing of a plus sign on a white background.

1650

Click the images below to view larger