Two-story beige suburban house with porch, garage, and landscaped front yard under a blue sky

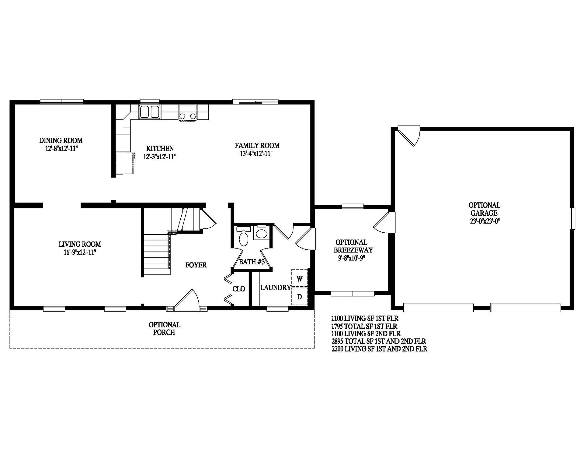
Helena

Black house icon on a white background

Two Story

Black bed icon with pillow and headboard, side view

4

Black bathtub with a showerhead spraying water onto it, bathroom icon

3

Black scan/crop icon with four corner brackets and a plus sign in the center on a white background

2200

Click the images below to view larger