Two-story gray house with a front porch, white trim, and lit windows at dusk

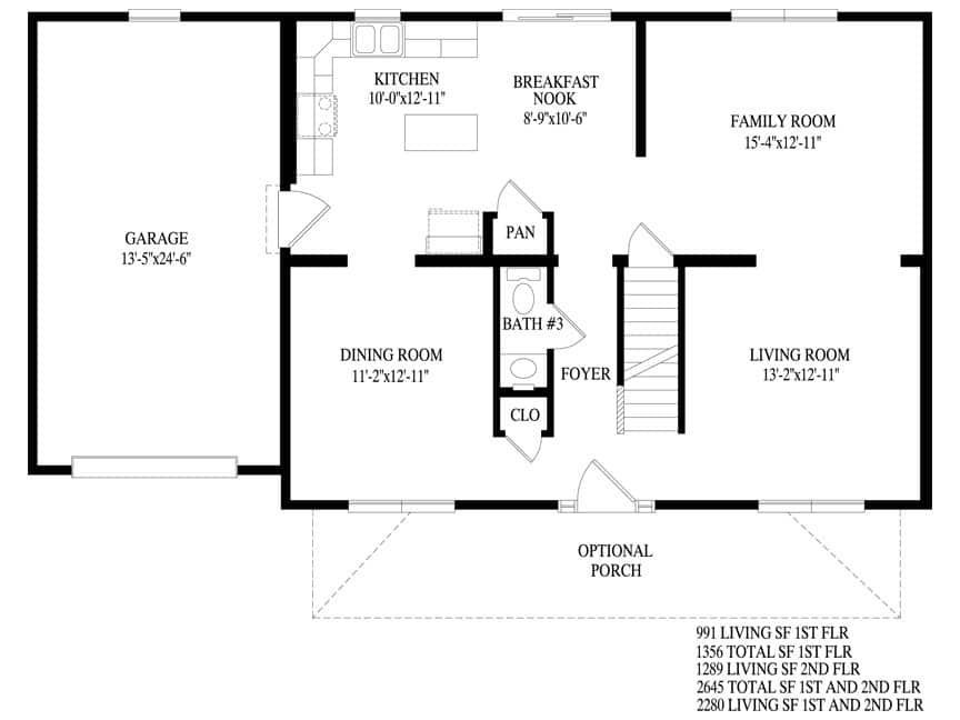
Brookville

Black house icon on a white background

Two Story

Black bed icon with a white pillow on a white background

3

Black bathtub with showerhead spraying water

4

Black crop/zoom icon with four corner brackets and a plus sign in the center on a white background

2500

Click the images below to view larger