Two-story suburban house with beige siding, red shutters, and a front porch at sunset

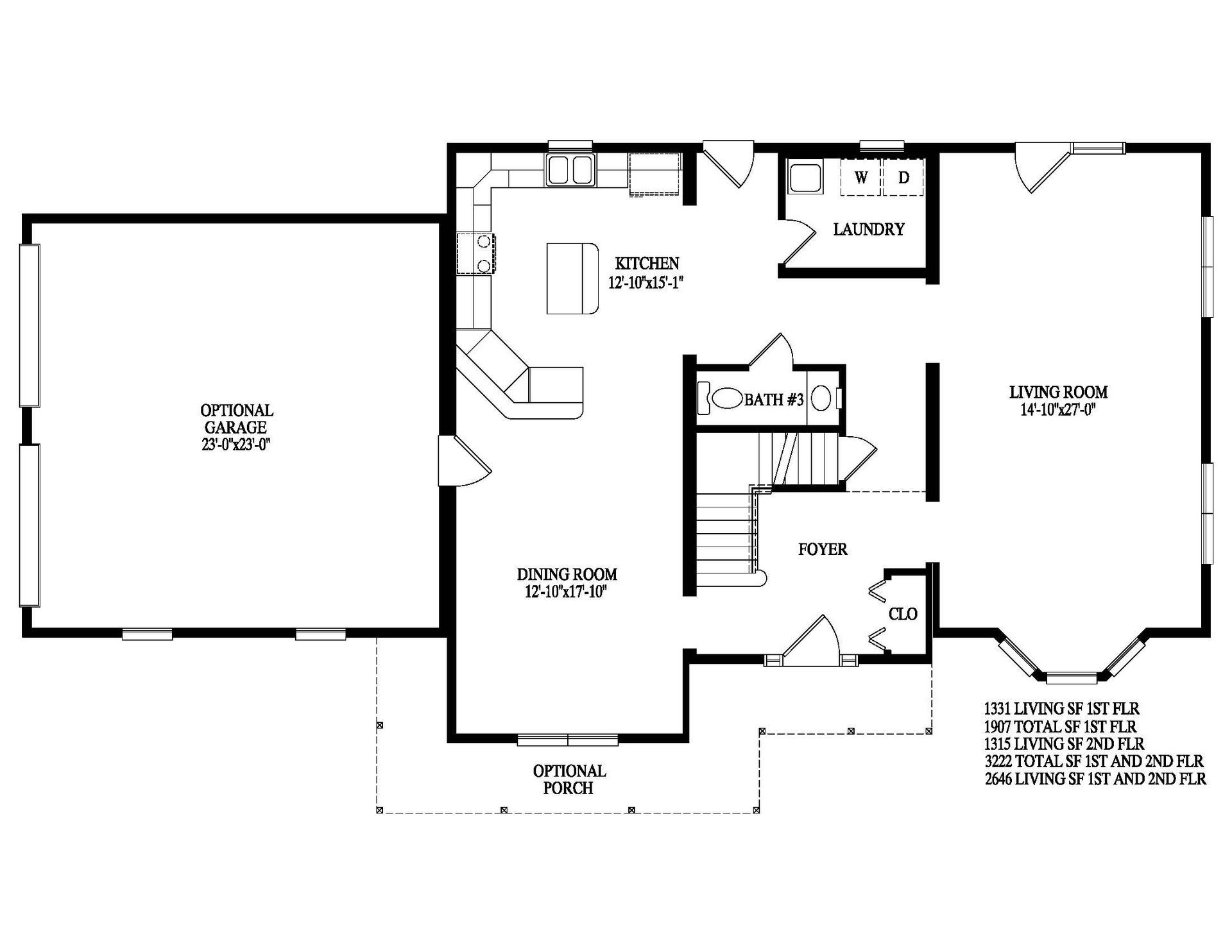
Berkshire

Black house icon on a white background

Two Story

Black bed icon with a white pillow and headboard on a white background

3

Black bathtub with showerhead spraying water on a white background

3

Black focus/scan icon with a plus sign in the center on a white background

2646

Click the images below to view larger