Two-story teal house with white trim and porch, behind a white fence under a blue sky

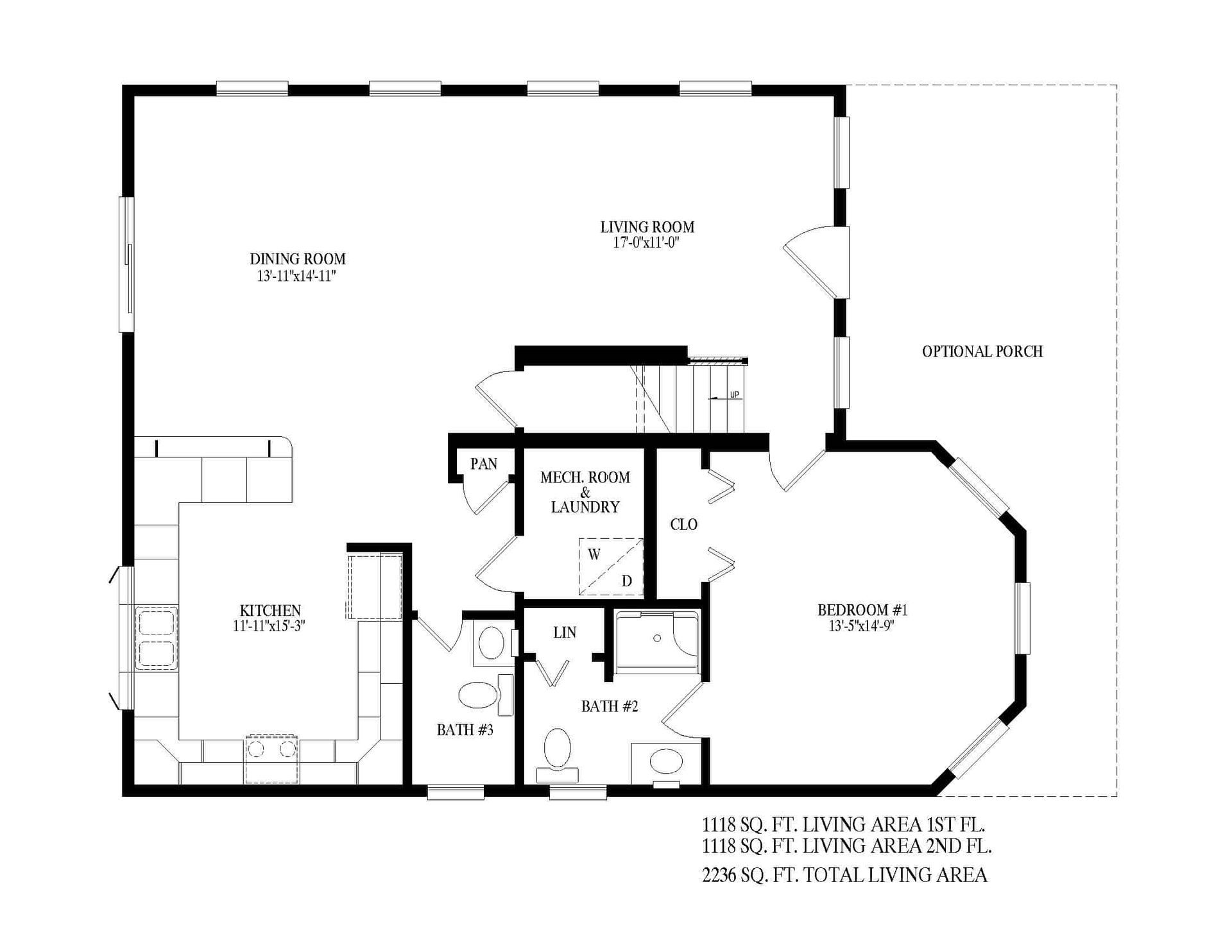
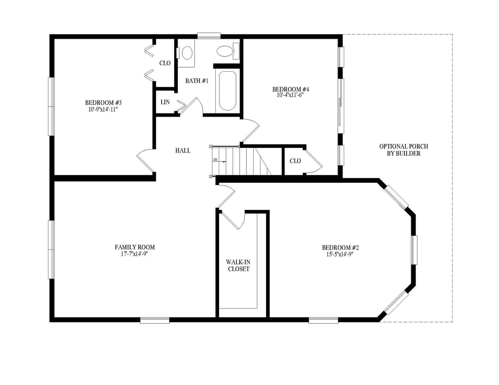
The Point Beach

Black house icon on a white background

Seaside Selections

Black bed icon with a white pillow and headboard on a white background

4

Black bathtub with showerhead spraying water on a white background

3

Black focus/scan icon with a plus sign in the center on a white background

2236

Click the images below to view larger