A large white house with a white picket fence is on the beach.

The Lavallette

A black silhouette of a house with a chimney on a white background.

Seaside Selections

A black and white silhouette of a bed on a white background.

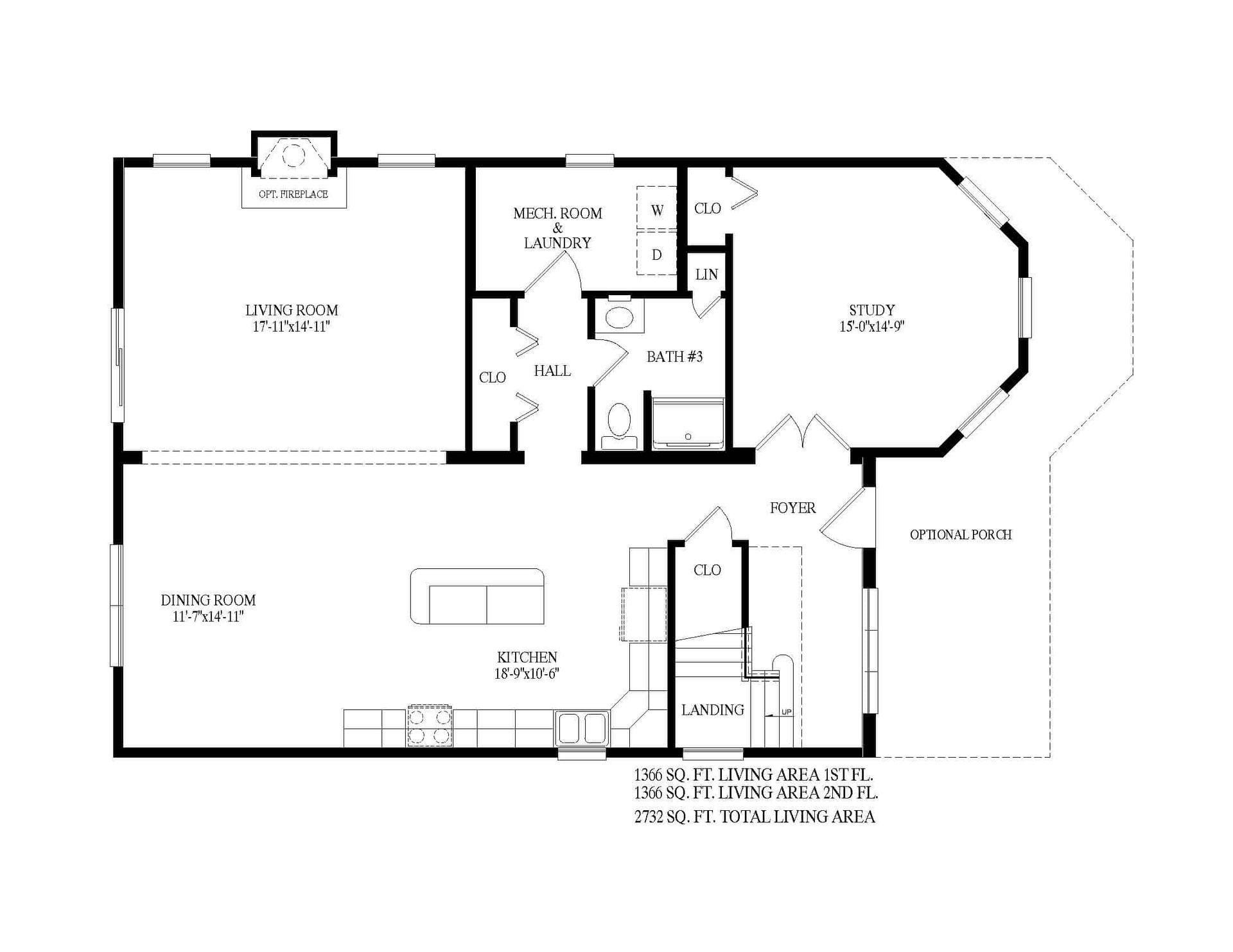
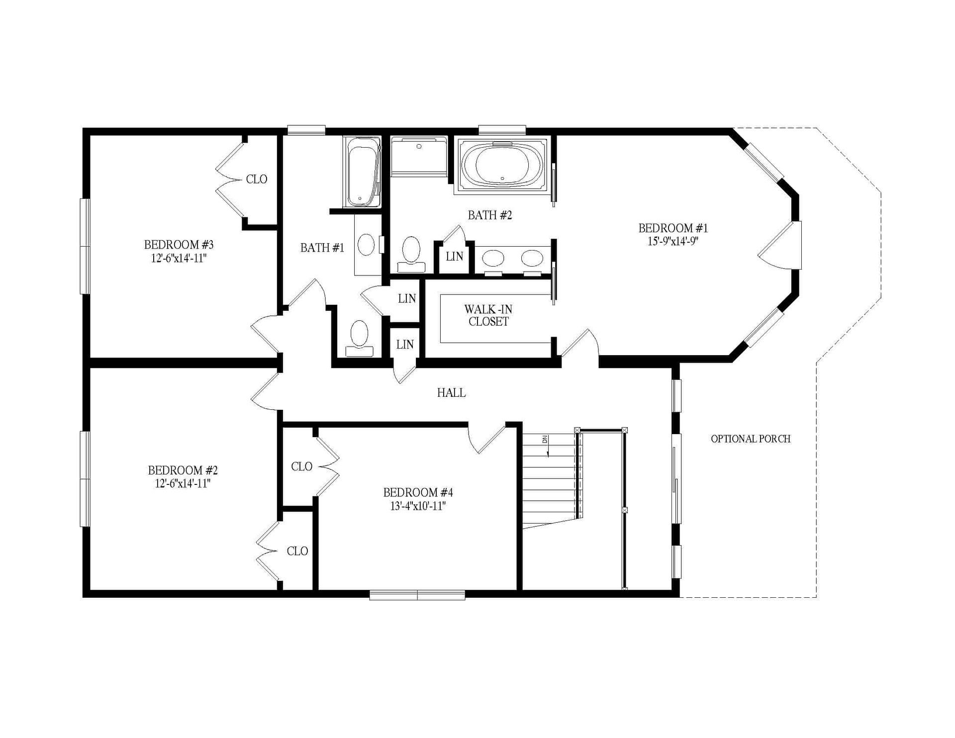
4

A black and white silhouette of a bathtub with a shower head.

3

A black and white drawing of a plus sign on a white background.

2732

Click the images below to view larger