An artist 's impression of a house with stairs leading up to it.

The Dune Grass

A black silhouette of a house with a chimney on a white background.

Seaside Selections

A black and white silhouette of a bed on a white background.

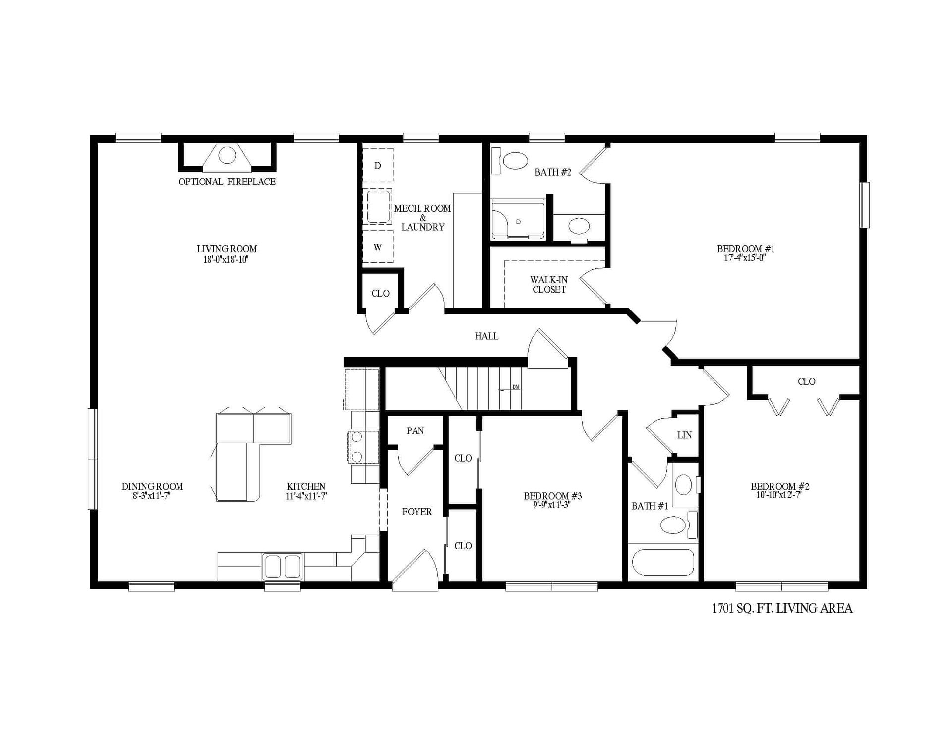
3

A black and white silhouette of a bathtub with a shower head.

2

A black and white drawing of a plus sign on a white background.

1701

Click the images below to view larger