An artist 's impression of a house with a black roof

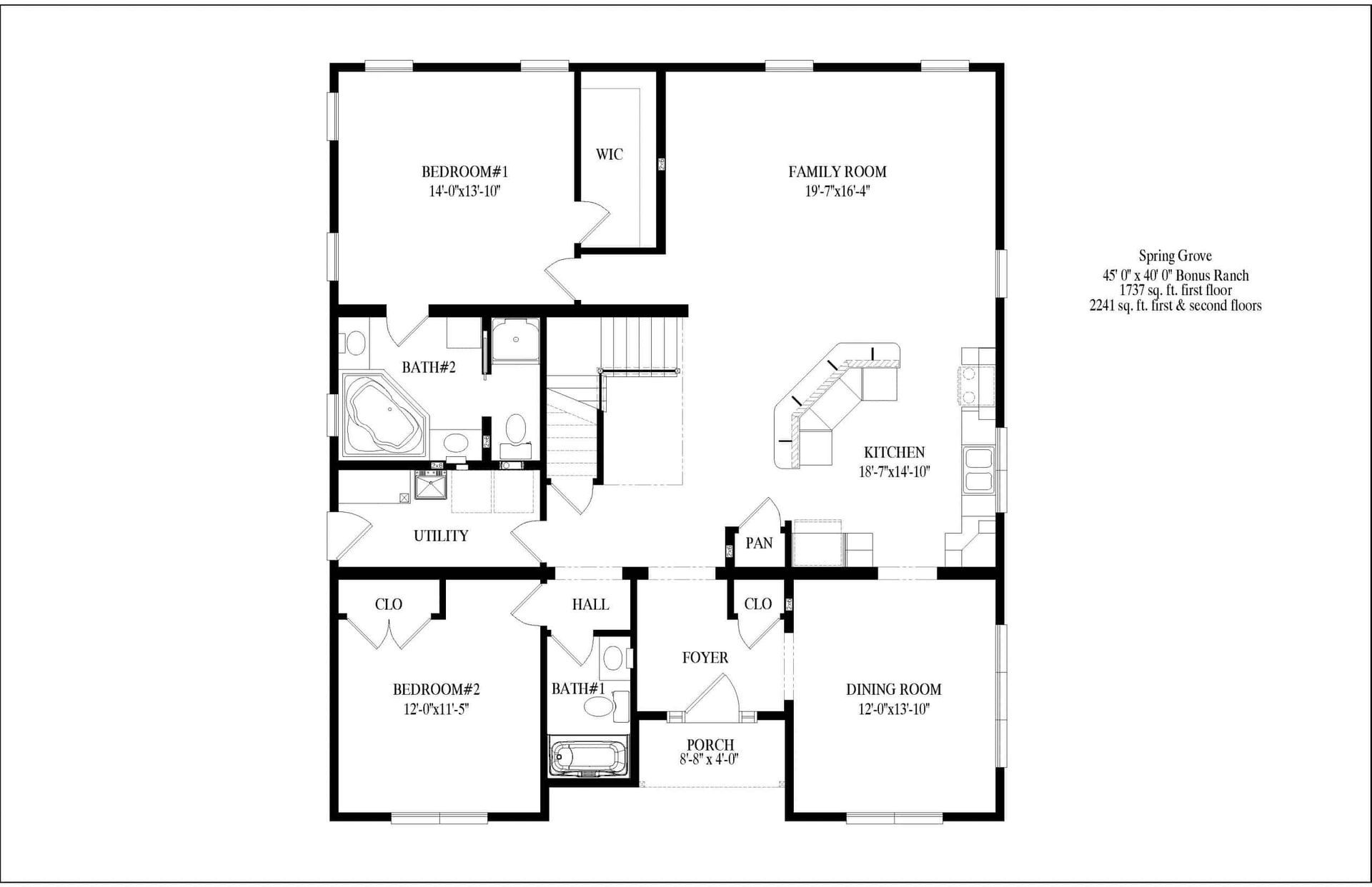
Spring Grove (Bonus Ranch)

A black silhouette of a house with a chimney on a white background.

Ranch

A black and white silhouette of a bed on a white background.

2

A black and white silhouette of a bathtub with a shower head.

2

A black and white drawing of a plus sign on a white background.

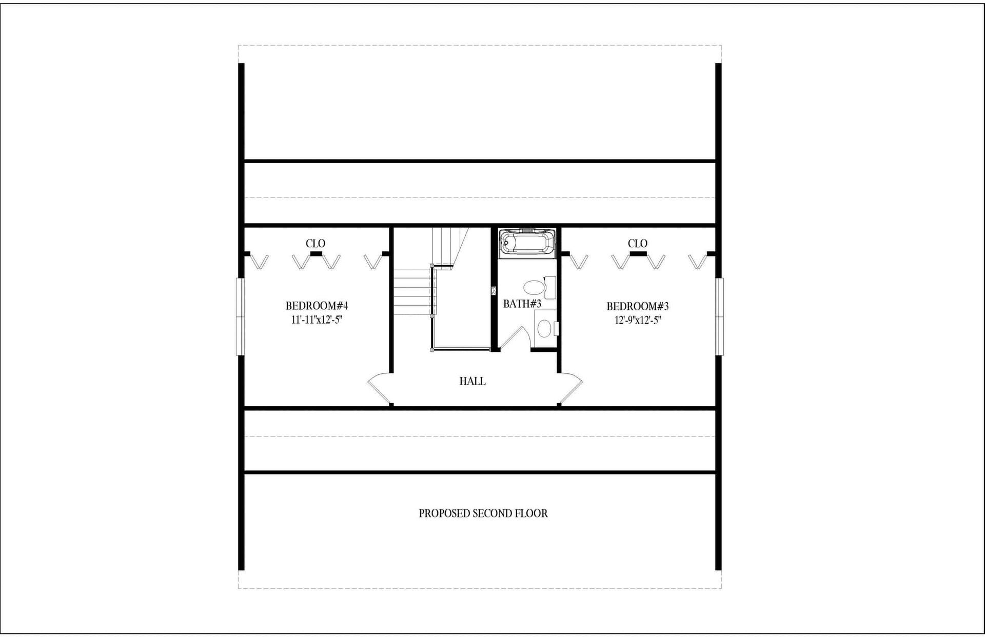
2241

Click the images below to view larger