Suburban house with gray siding, brown roof, front porch, and a two-car garage under a blue sky

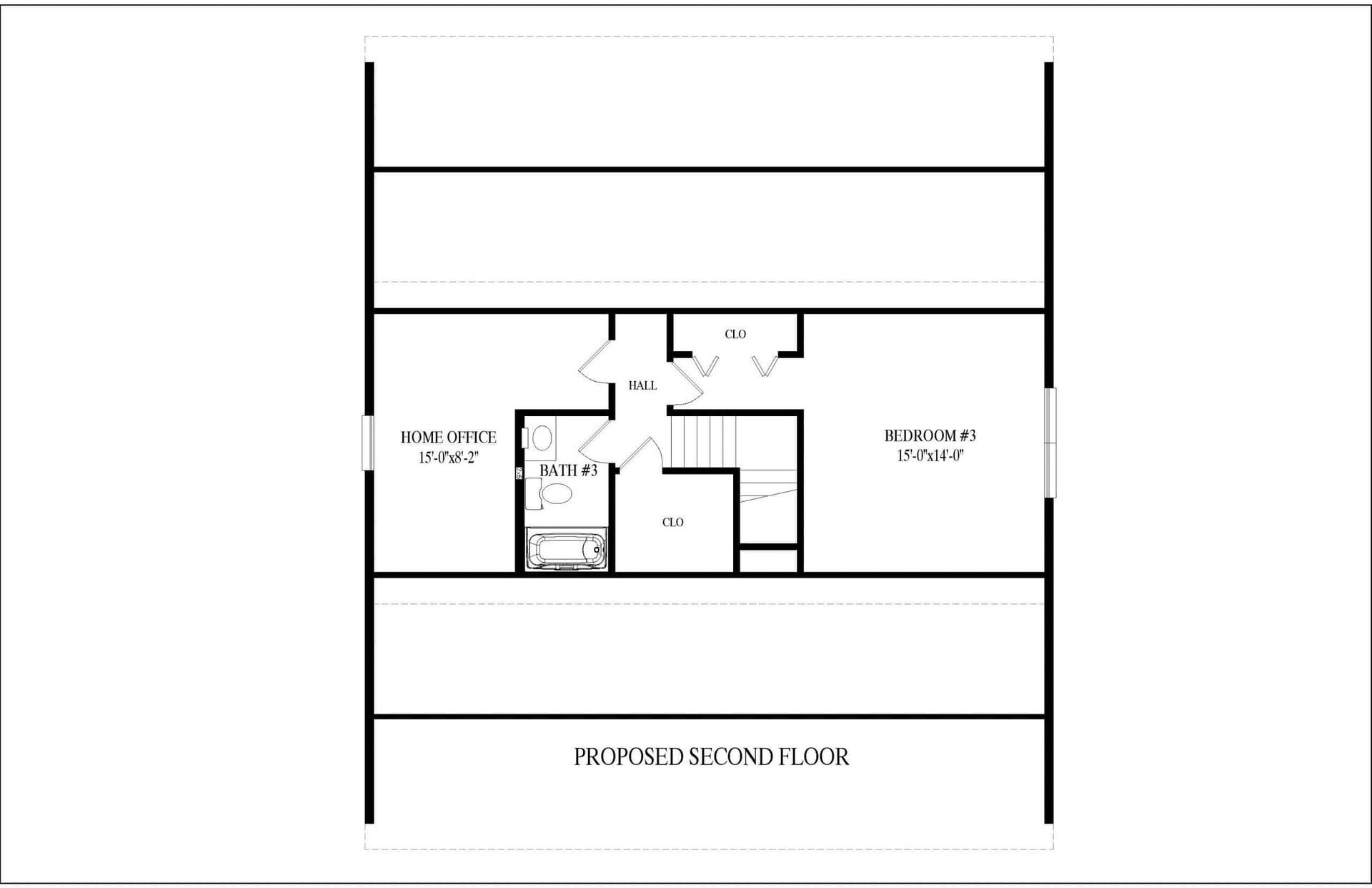
Pebble Creek II (Bonus Ranch)

Black house icon on a white background

Ranch

Black bed icon with pillow and headboard, side view

2

Black bathtub with a showerhead spraying water onto it, bathroom icon

2

Black scan/crop icon with four corner brackets and a plus sign in the center on a white background

2101

Click the images below to view larger