An artist 's impression of a house with a large lawn in front of it.

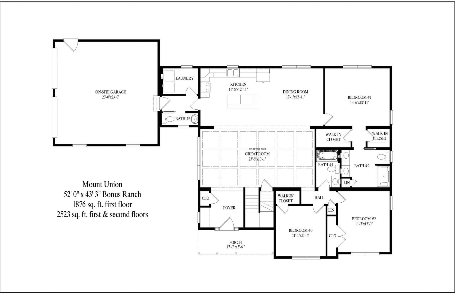
Mount Union (Bonus Ranch)

A black silhouette of a house with a chimney on a white background.

Ranch

A black and white silhouette of a bed on a white background.

3

A black and white silhouette of a bathtub with a shower head.

3

A black and white drawing of a plus sign on a white background.

2523

Click the images below to view larger