An artist 's impression of a brick apartment building with cars parked in front of it.

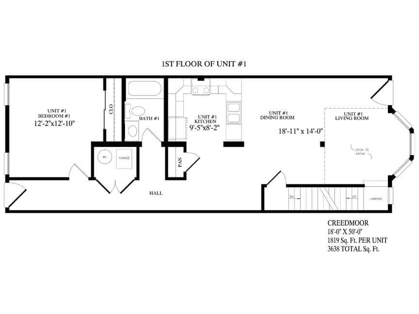
Creedmoor

A black silhouette of a house with a chimney on a white background.

Multi Family

A black and white silhouette of a bed on a white background.

2

A black and white silhouette of a bathtub with a shower head.

2

A black and white drawing of a plus sign on a white background.

1500

Click the images below to view larger