An artist 's impression of a house with a large deck

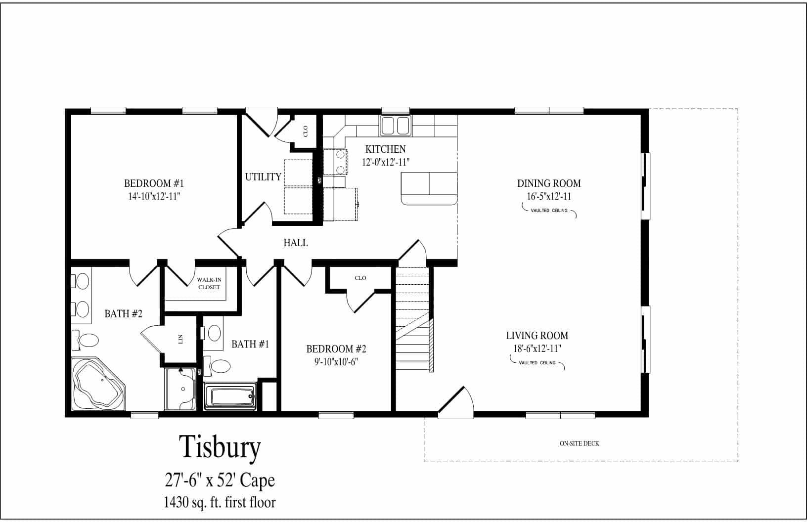
Tisbury

A black silhouette of a house with a chimney on a white background.

Vacation

A black and white silhouette of a bed on a white background.

2

A black and white silhouette of a bathtub with a shower head.

2

A black and white drawing of a plus sign on a white background.

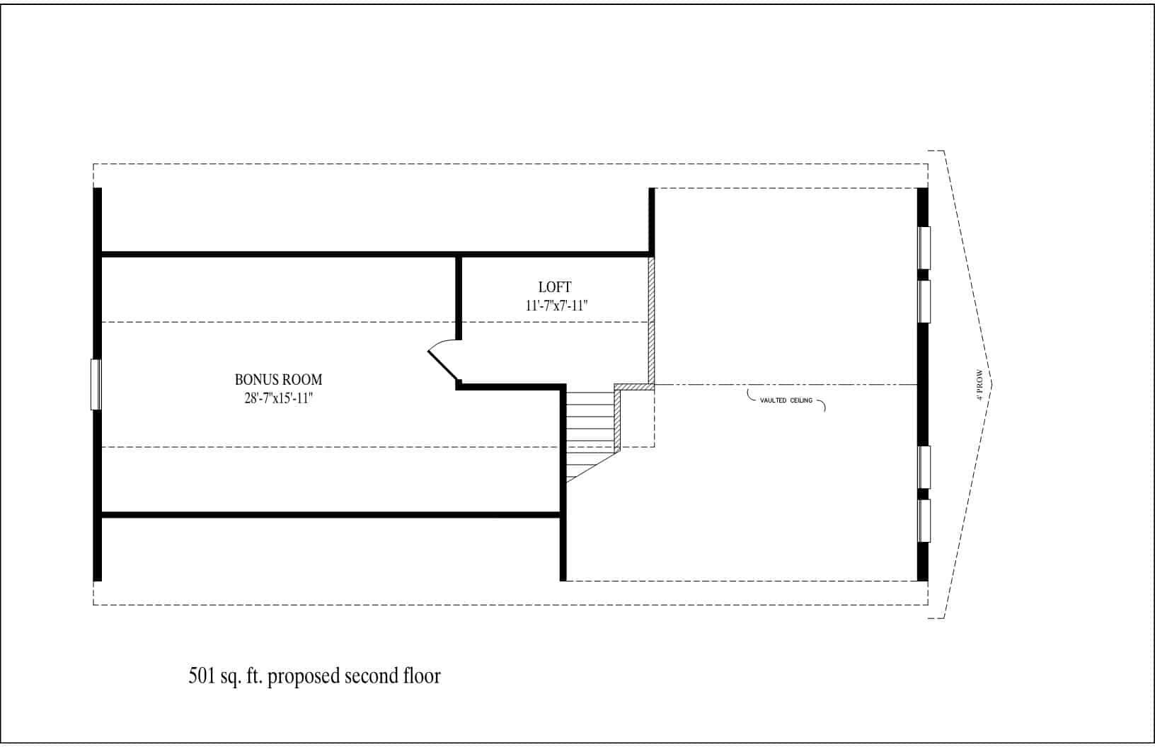
1931

Click the images below to view larger